Перейти к содержимому

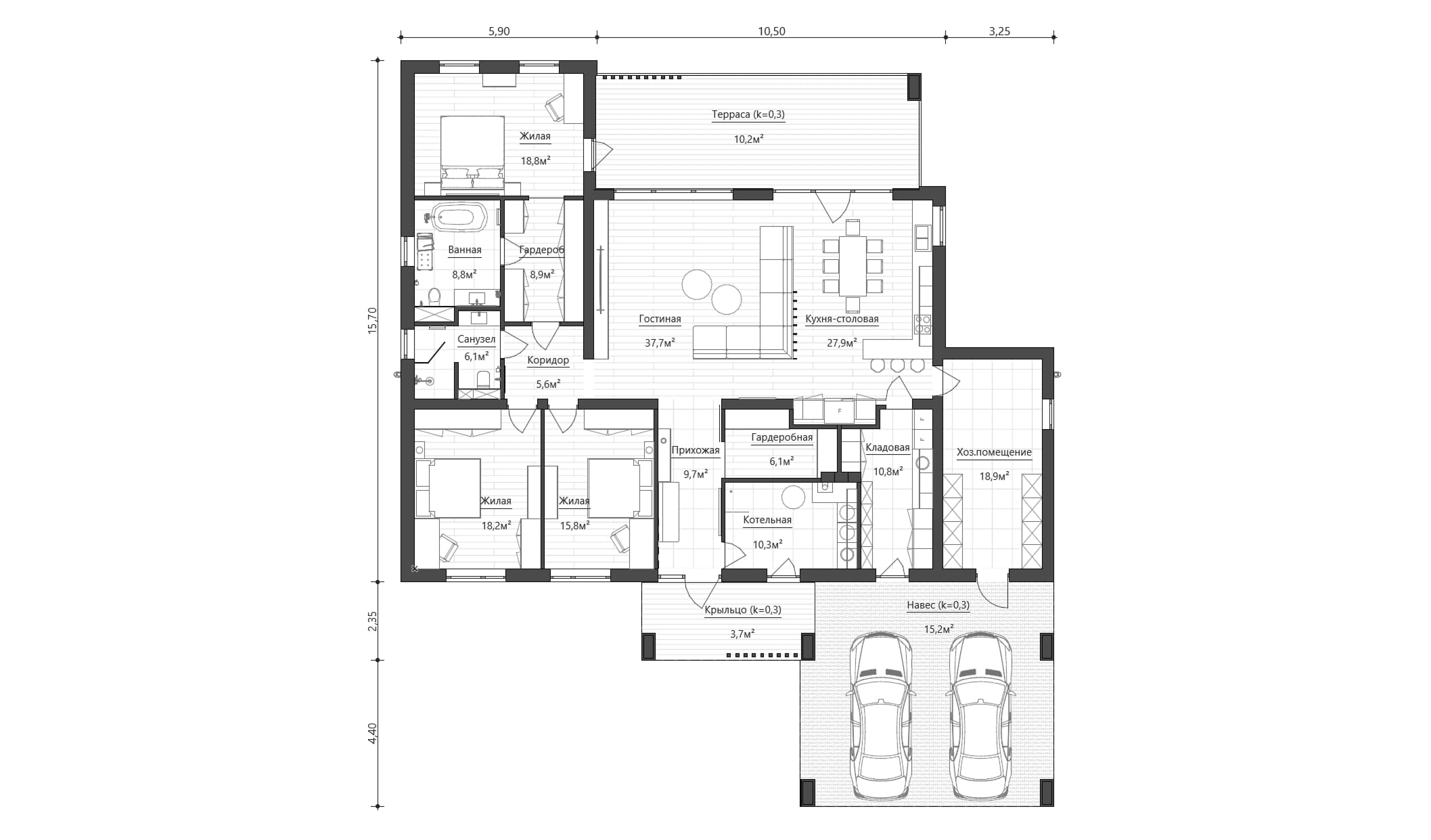
Галенор 234 м²

3 спальни
2 санузла
Терраса

Галенор 234 м²

3 спальни
2 санузла
Терраса

Основные характеристики

  • Гостиная с открытой кухней
  • Мастер-спальня с гардеробной
  • Две дополнительные спальни
  • Отдельный кабинет
  • Две ванные комнаты
  • Просторная терраса

Стоимость проекта:

от 900 BYN

Стоимость строительства:

от 429 298 BYN
Возможна рассрочка
Бесплатная консультация с архитектором
Нажимая на кнопку, вы соглашаетесь с политикой конфиденциальности
  • Количество этажей
    1 этаж
  • Общая площадь (с террасами и навесом)
    337,4
  • Площадь с учётом террас и крылец
    264,95
  • Тип участка
    Широкий
  • Количество спален
    3
  • Количество сан узлов
    2
  • Тип кровли
    Плоская
  • Наличие сауны
    Да
  • Навес для авто
    Да
  • Терраса
    Да
  • Количество этажей
    1 этаж
  • Общая площадь (с террасами и навесом)
    337,4
  • Площадь с учётом террас и крылец
    264,95
  • Тип участка
    Широкий
  • Количество спален
    3
  • Количество сан узлов
    2
  • Тип кровли
    Плоская
  • Наличие сауны
    Да
  • Навес для авто
    Да
  • Терраса
    Да
Стоимость строительства
Этапы

Проектирование — бесплатно при покупке любой стадии строительства

1. Закрытый контур — фундамент

  • Геодезическая разбивка
  • Земляные работы
  • Свайно-ростверковый фундамент
  • Монтаж коммуникаций
  • Черновой пол
  • Несущие стены КББлок 300 мм
  • Внутренние стены КББлок 120 мм
  • Вентиляционные каналы КББлока
  • Монолитные перемычки и пояса
  • Монолитное перекрытие
  • парапеты из КББлока 300мм
Этапы

Проектирование — бесплатно при покупке любой стадии строительства

1. Закрытый контур

2. Теплый закрытый контур

  • Свето-прозрачные конструкции:
    - Профиль Kommerling 76мм
    - Остекление: 4СИ-20-4М1-18И4: Стеклопакет 50мм + мультистекло + энерго
    - Тонировка: Мультистекло LARTA HOME-Salar Neitral – АНТИЖАРА
    - Фурнитура: Roto NX
    - Окно на террасе системы PremiDoor KBE
  • Монтаж входной двери
  • Электромонтажные работы
  • Внутренние штукатурные работы
  • Утепление перекрытия и кровли второго света 250мм
  • Устройство фасадной отделки с утеплением 100мм декоративной штукатуркой
  • Утепление кровли 250мм
  • Монтаж ПВХ мембраны
  • Монтаж труб водост очной системы «AquaSystem Comfort»
  • Прокладка канализации, водоснабжения, обустройство системы отопления теплыми полами
  • Обустройство котельной
  • Чистовая стяжка пола
  • Отмостка без финишного покрытия
Этапы

Проектирование — бесплатно при покупке любой стадии строительства

1. Закрытый контур — фундамент

2. Теплый закрытый контур

3. Чистовая отделка внутри и снаружи

Индивидуальный
расчет
3 месяца

Фундамент, черновая стяжка, стены, монолитное перекрытие (без кровельного пирога)

Показать этапы строительства

Проектирование — бесплатно при покупке любой стадии строительства

1. Закрытый контур — фундамент

  • Геодезическая разбивка
  • Земляные работы
  • Свайно-ростверковый фундамент
  • Монтаж коммуникаций
  • Черновой пол
  • Несущие стены КББлок 300 мм
  • Внутренние стены КББлок 120 мм
  • Вентиляционные каналы КББлока
  • Монолитные перемычки и пояса
  • Монолитное перекрытие
  • парапеты из КББлока 300мм
7 месяцев

Дом утеплён, оштукатурены стены. Разведена черновая электрика, отопление, водоснабжение, канализация.

Показать этапы строительства

Проектирование — бесплатно при покупке любой стадии строительства

1. Закрытый контур

2. Теплый закрытый контур

  • Свето-прозрачные конструкции:
    - Профиль Kommerling 76мм
    - Остекление: 4СИ-20-4М1-18И4: Стеклопакет 50мм + мультистекло + энерго
    - Тонировка: Мультистекло LARTA HOME-Salar Neitral – АНТИЖАРА
    - Фурнитура: Roto NX
    - Окно на террасе системы PremiDoor KBE
  • Монтаж входной двери
  • Электромонтажные работы
  • Внутренние штукатурные работы
  • Утепление перекрытия и кровли второго света 250мм
  • Устройство фасадной отделки с утеплением 100мм декоративной штукатуркой
  • Утепление кровли 250мм
  • Монтаж ПВХ мембраны
  • Монтаж труб водост очной системы «AquaSystem Comfort»
  • Прокладка канализации, водоснабжения, обустройство системы отопления теплыми полами
  • Обустройство котельной
  • Чистовая стяжка пола
  • Отмостка без финишного покрытия
12 месяцев

Дом полностью готов к проживанию.
Индивидуальный расчет после согласования дизайна интерьера

Показать этапы строительства

Проектирование — бесплатно при покупке любой стадии строительства

1. Закрытый контур — фундамент

2. Теплый закрытый контур

3. Чистовая отделка внутри и снаружи

Индивидуальный расчет

Стоимость проектирования

  • Архитектурный проект
    900 BYN
    Архитектурный проект - раздел строительной документации, содержащий информацию о объёмно-планировочном решении Вашего будущего дома.
    1.Общие данные, технико-экономические показатели, пояснительная записка;
    2.Поэтажные планы с экспликацией помещений (мебели, кладочные, маркировочные);
    3.Разрезы (поперечный и продольный) с составом ограждающих конструкций
    4.План кровли;
    5.Фасады в осях с цветовым решением фасадов;
    6.Экспликация полов. Ведомость заполнения проёмов;
    7.3Д виды.
    Галенор 234 м²
  • Конструктивные решения
    + 1 500 BYN

    Конструктивные решения - раздел строительного проекта, содержащий детальную проработку несущих конструкций 
    с подсчётом спецификации.

    1. Общие данные, технические указания и рекомендации по выполнению строительно-монтажных работ;
    2. Планы и сечения фундаментов, спецификации;
    3. Планы расположения элементов перекрытий. Спецификации;
    4. Планы расположения элементов крыши. План стропил. Спецификации;
    5. Схемы устройства конструктивных элементов, требующих детального изображения (монолитный пояс, монолитные участки);
    6. Чертежи узлов и деталей по всем конструктивным элементам;
    7. Спецификация и сечения перемычек;
    8. Схема утепления фасадов;
    9. 3Д Виды конструктива дома.
    Конструктивные решения
    Конструктивные решения
    Конструктивные решения
  • Генеральный план
    + 600 BYN

    Генеральный план - раздел строительного проекта, содержащий план с точным расположения и привязкой к местности, дорогам, окружающим строениям, существующим коммуникациям, противопожарным разрывам.

    1. Разбивочный план. Ситуационная схема;
    2. Вертикальная планировка;
    3. Схема наружных инженерных сетей.
    Генеральный план
  • Проект инженерных сетей
    + 1 200 BYN

    Инженерные сети - раздел технических решений по внутренней канализации, отоплению, водоснабжению и устройству котельной с подробной спецификацией.

    1. Пояснительная записка. Расчёты теплопотерь
    2. План и схема раскладки труб канализации;
    3. План и схемы системы водоснабжения;
    4. План и схемы системы отопления;
    5. Схемы устройства котельной;
    6. Спецификация изделий и материалов.
    Проект инженерных сетей
    Проект инженерных сетей
    Проект инженерных сетей
  • Система вентиляции и кондиционирования
    + 2 000 BYN

    Это система, которая работает за счёт приточно-вытяжной установки, состоящей из вентиляторов, фильтров и теплообменника. С помощью воздуховодов такая установка подаёт свежий воздух в одни помещения и выкачивает отработанный из других.

    1.Таблица воздушных балансов (расчёт) для вентиляции и кондиционирования;
    2.План и аксонометрическая схема системы вентиляции;
    3.Аксонометрическая схема системы Вентиляции;
    4.Узлы вент-коллекторов и вентустановки;
    5.План и аксонометрическая схема система кондиционирования
    6.Схемы монтажа вентустановки и кондиционирования;
    7.Спецификация изделий и материалов.

    Система вентиляции и кондиционирования
    Система вентиляции и кондиционирования
    Система вентиляции и кондиционирования
  • Геологические изыскания (Геология)
    + 800 BYN

    Изучение природных условий и особенностей грунта на участке, где планируется строительство. 

    Это поможет избежать ошибок в проектировании дома и предотвратить такие проблемы, как трещины в фасаде или деформации строения. Геологические изыскания также позволяют определить тип грунта, что влияет на выбор фундамента и его стоимость. Без проведения геологических изысканий есть риск возникновения опасных ситуаций, таких как обрушение здания из-за оползней или возникновение плесневых грибков.

    Геологические изыскания (Геология)
    Геологические изыскания (Геология)
  • Геодезические изыскания (Топосъёмка)
    + 600 BYN

    Это комплекс геодезических работ, направленных на детальное изучение территории (создание точного плана местности, отображающий рельеф, инфраструктуру, подземные коммуникации и иные элементы). 

    Этот процесс включает как полевые исследования, так и камеральную обработку данных, результатом которой становится инженерно-топографический план.

    Геодезические изыскания (Топосъёмка)
    Геодезические изыскания (Топосъёмка)
  • Полный технический дизайн проект
    + 14 320 BYN

    - Планировочное решение включает в себя обмеры на объекте (при оконченных строительных работах, в противном случае используется размерный план архитектурного проекта), планировку с расстановкой мебели (2-5 эскизных варианта с расстановки мебели, финальная планировка).

    - Комплект чертежей состоит из следующих схем: обмерный/размерный план, демонтажа/монтажа перегородок и конструкций, схема сложных узлов, план расстановки мебели, схема потолков, схема освещения, схема освещения в группах, схема электрики, схема водоснабжения, схема кондиционирования и расположения элементов вентиляции, схема отделки стен, эскизы раскладки плитки, развёртки стен и другие дополнительные схемы при необходимости.

    Полный технический дизайн проект
    Полный технический дизайн проект
    Полный технический дизайн проект
  • Полный дизайн проект с Визуализациями
    + 28 640 BYN

    Планировочное решение включает в себя обмеры на объекте (при оконченных строительных работах, в противном случае используется размерный план архитектурного проекта), планировку с расстановкой мебели (2-5 эскизных варианта с расстановки мебели, финальная планировка).

    Концепция - стилевая и цветовая подборка референсов по каждому помещению с детализацией - как визуальный показ идеи, которая лежит в основе всего проекта и определяет его общее направление. Идея проходит через основные элементы дизайна интерьера, объединяя их в единое целое и придавая пространству индивидуальный характер.

    Визуализация (3D картинки) - трехмерные картинки будущего интерьера в объеме. 3D-картинка покажет общий объем пространства и атмосферу, как сочетаются между собой материалы, мебель и декор. (сюда не входят рекомендации и подбор материалов!)

    Комплект чертежей состоит из следующих схем: обмерный/размерный план, демонтажа/монтажа перегородок и конструкций, схема сложных узлов, план расстановки мебели, схема потолков, схема освещения, схема освещения в группах, схема электрики, схема водоснабжения, схема кондиционирования и расположения элементов вентиляции, схема отделки стен, эскизы раскладки плитки, развёртки стен и другие дополнительные схемы при необходимости.

    Спецификация и подбор материалов - список отделочных материалов, мебели и оборудования, с указанием габаритных размеров, ориентировочных цветов, фактур и рекомендации поставщиков.

    Полный дизайн проект с Визуализациями
Итоговая сумма: 0
Итоговая сумма:
0

Полный обзор дома

Полный разбор проекта, как мы проектировали, строили и создавали этот дом

Смотрите на YouTube

Посмотреть обзор
Я лично слежу за каждым этапом строительства
Наша компания и я как собственник несем ответственность до конца и даже совершив ошибку — мы исправим её, а потом решаем чья ответственность. Мы сами проектируем и строим дома своими силами. Один ответственный за все!
Беликов Алексей
Основатель и собственник строительной компании ООО «Беликов Монолит»
Не нашли подходящий проект?
Наши архитекторы разработают
индивидуальный проект!
На этапе согласования проекта работаем до состояния
«мне нечего добавить» у собственника и у архитектора
Проект дома по индивидуальному проекту
Проект дома по индивидуальному проекту
Проект дома по индивидуальному проекту
Проект дома по индивидуальному проекту
Проект дома по индивидуальному проекту
Проект дома по индивидуальному проекту
Проект дома по индивидуальному проекту
Проект дома по индивидуальному проекту
Проект дома по индивидуальному проекту
Проект дома по индивидуальному проекту
Проект дома по индивидуальному проекту
Проект дома по индивидуальному проекту