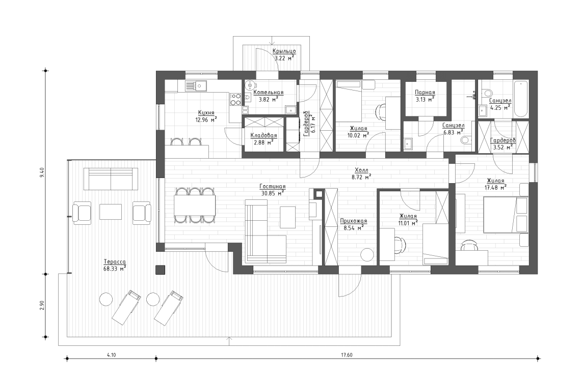
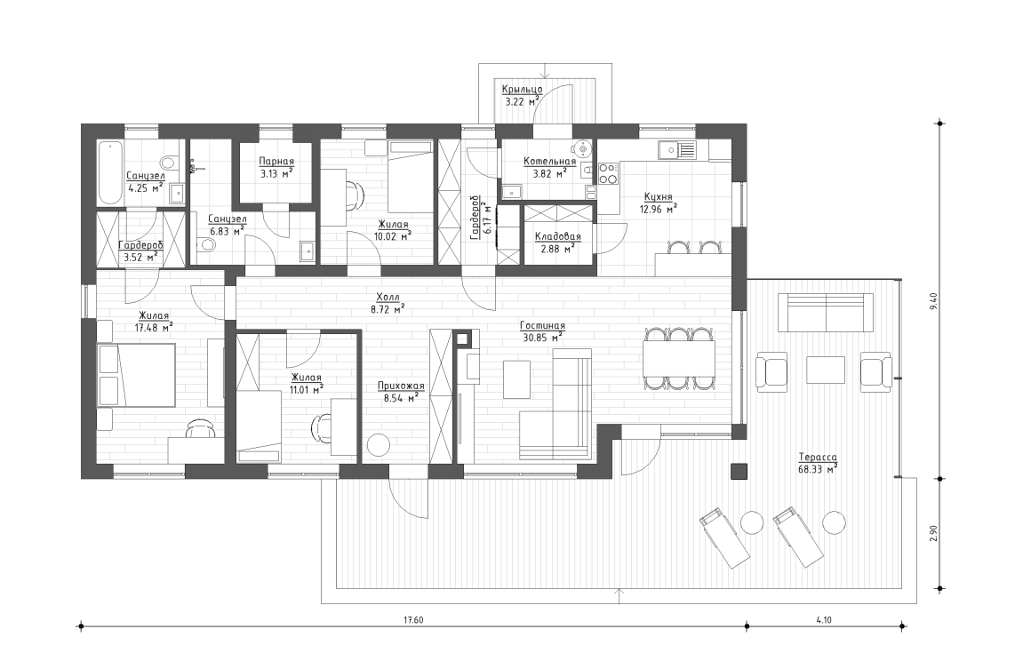
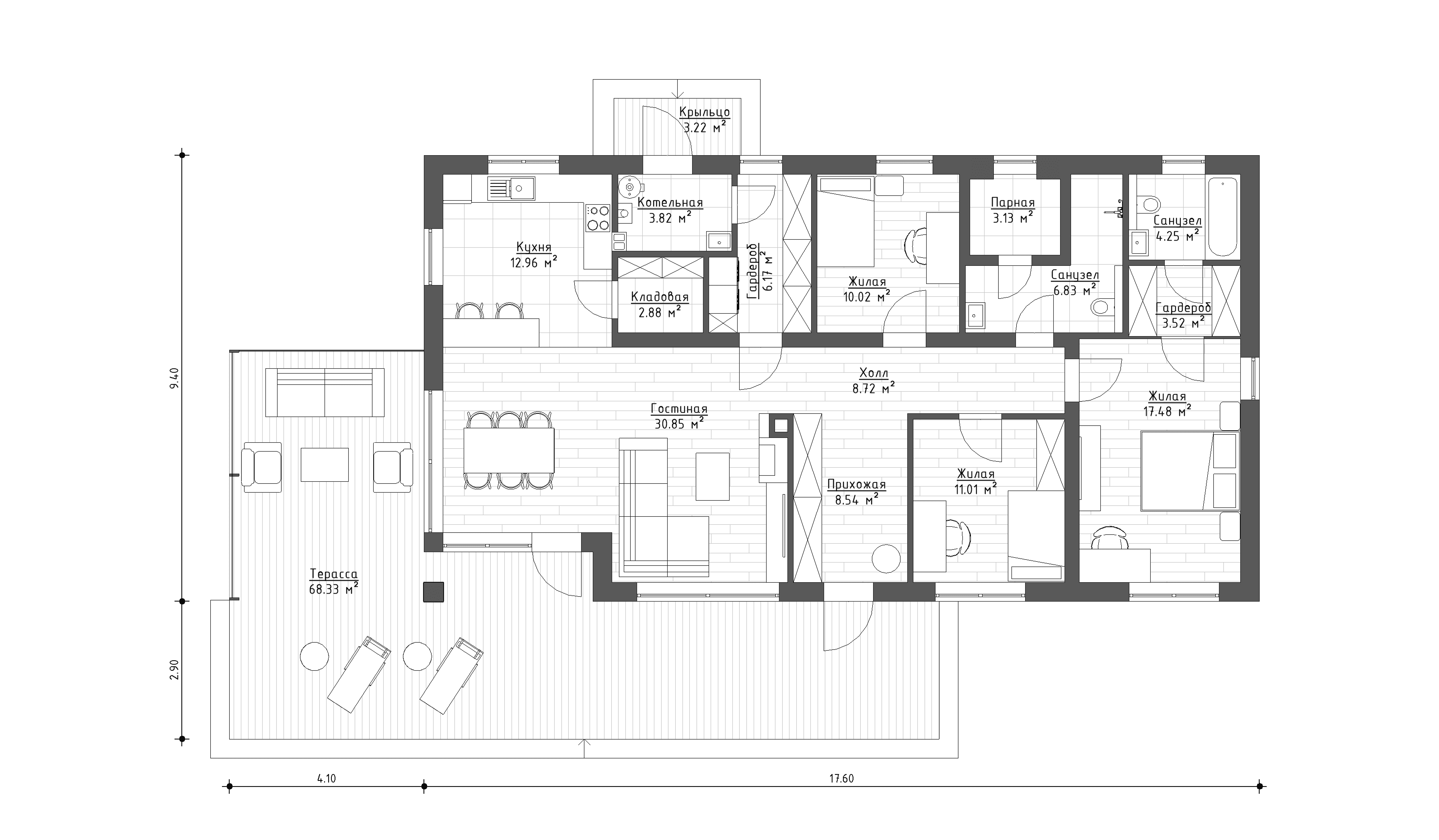
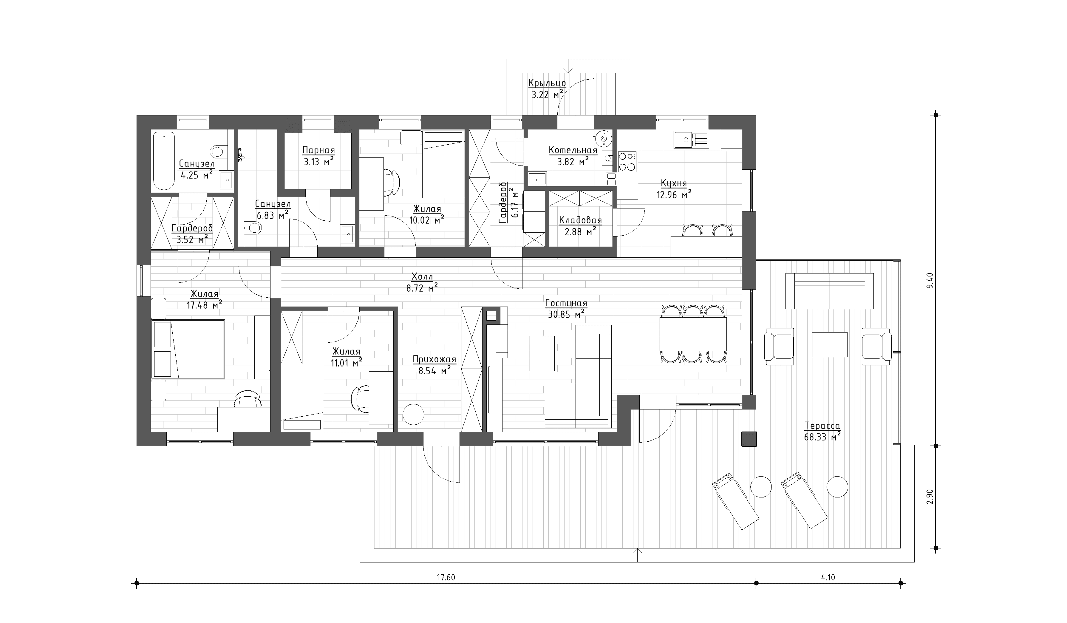
Флюорит 130 м²
Основные характеристики дома
- Гостиная с открытой кухней
- Мастер-спальня с гардеробной
- Две дополнительные спальни
- Кладовая рядом с кухней
- Просторная терраса
Стоимость проекта:
от 900 BYN
Стоимость строительства:
Планировочные решения
Площадь дома
-
Количество этажей1 этаж
-
Общая площадь (с террасами и навесом)201,72
-
Площадь с учётом террас и крылец151,63
-
Наличие сауныДа
-
Количество спален3
-
Количество сан узлов2
-
Тип кровлиПлоская
-
Тип участкаШирокий
-
Навес для автоНет
-
Количество этажей1 этаж
-
Общая площадь (с террасами и навесом)201,72
-
Площадь с учётом террас и крылец151,63
-
Наличие сауныДа
-
Количество спален3
-
Количество сан узлов2
-
Тип кровлиПлоская
-
Тип участкаШирокий
-
Навес для автоНет



-
Закрытый контур3 месяца
Фундамент, черновая стяжка, стены, кровля.
-
Теплый закрытый контур7 месяцев
Дом утеплён, оштукатурены стены. Разведена черновая электрика, отопление, водоснабжение, канализация.
-
Чистовая отделка внутри и снаружи12 месяцев
Дом полностью готов к проживанию.
Индивидуальный расчет после согласования дизайна интерьера
Проектирование — 1 месяц — бесплатно при покупке любой стадии строительства
1. Закрытый контур — фундамент
- Геодезическая разбивка
- Земляные работы
- Свайно-ростверковый фундамент
- Монтаж коммуникаций
- Черновой пол
- Несущие стены КББлок 300 мм
- Внутренние стены КББлок 120 мм
- Вентиляционные каналы КББлока
- Монолитные перемычки и пояса
- Обработка пиломатериала биозащитными составами
- Кровля с покрытием металлочерепицы «Топ Дах» матовой 0,5мм
- Водосточная система «AquaSystem Comfort»
Проектирование — 1 месяц — бесплатно при покупке любой стадии строительства
1. Закрытый контур
2. Теплый закрытый контур
- Свето-прозрачные конструкции:
- Профиль Kommerling 76мм
- Остекление: 4СИ-20-4М1-18И4: Стеклопакет 50мм + мультистекло + энерго
- Тонировка: Мультистекло LARTA HOME-Salar Neitral – АНТИЖАРА
- Фурнитура: Roto NX
- Окно на террасе системы PremiDoor KBE - Монтаж входной двери
- Электромонтажные работы
- Внутренние штукатурные работы
- Утепление перекрытия и кровли второго света 250мм
- Устройство фасадной отделки с утеплением 100мм декоративной штукатуркой
- Устройство карнизного свеса с подшивкой металлическими софитами «Docke»
- Монтаж труб водост очной системы «AquaSystem Comfort»
- Прокладка канализации, водоснабжения, обустройство системы отопления теплыми полами
- Обустройство котельной
- Чистовая стяжка пола
- Отмостка без финишного покрытия
Проектирование — 1 месяц — бесплатно при покупке любой стадии строительства
1. Закрытый контур — фундамент
2. Теплый закрытый контур
3. Чистовая отделка внутри и снаружи
Стоимость проектирования
-
0Архитектурный проект900 BYNАрхитектурный проект - раздел строительной документации, содержащий информацию о объёмно-планировочном решении Вашего будущего дома.
1.Общие данные, технико-экономические показатели, пояснительная записка;
2.Поэтажные планы с экспликацией помещений (мебели, кладочные, маркировочные);
3.Разрезы (поперечный и продольный) с составом ограждающих конструкций
4.План кровли;
5.Фасады в осях с цветовым решением фасадов;
6.Экспликация полов. Ведомость заполнения проёмов;
7.3Д виды. -
0Конструктивные решения+ 1 500 BYN
Конструктивные решения - раздел строительного проекта, содержащий детальную проработку несущих конструкций
с подсчётом спецификации.- Общие данные, технические указания и рекомендации по выполнению строительно-монтажных работ;
- Планы и сечения фундаментов, спецификации;
- Планы расположения элементов перекрытий. Спецификации;
- Планы расположения элементов крыши. План стропил. Спецификации;
- Схемы устройства конструктивных элементов, требующих детального изображения (монолитный пояс, монолитные участки);
- Чертежи узлов и деталей по всем конструктивным элементам;
- Спецификация и сечения перемычек;
- Схема утепления фасадов;
- 3Д Виды конструктива дома.
-
0Генеральный план+ 600 BYN
Генеральный план - раздел строительного проекта, содержащий план с точным расположения и привязкой к местности, дорогам, окружающим строениям, существующим коммуникациям, противопожарным разрывам.
- Разбивочный план. Ситуационная схема;
- Вертикальная планировка;
- Схема наружных инженерных сетей.
-
0Проект инженерных сетей+ 1 200 BYN
Инженерные сети - раздел технических решений по внутренней канализации, отоплению, водоснабжению и устройству котельной с подробной спецификацией.
- Пояснительная записка. Расчёты теплопотерь
- План и схема раскладки труб канализации;
- План и схемы системы водоснабжения;
- План и схемы системы отопления;
- Схемы устройства котельной;
- Спецификация изделий и материалов.
-
0Принудительная вентиляция с рекуперацией и кондиционирование+ 1 000 BYN
Это система, которая работает за счёт приточно-вытяжной установки, состоящей из вентиляторов, фильтров и теплообменника. С помощью воздуховодов такая установка подаёт свежий воздух в одни помещения и выкачивает отработанный из других.
1.Таблица воздушных балансов (расчёт) для вентиляции и кондиционирования;
2.План и аксонометрическая схема системы вентиляции;
3.Аксонометрическая схема системы Вентиляции;
4.Узлы вент-коллекторов и вентустановки;
5.План и аксонометрическая схема система кондиционирования
6.Схемы монтажа вентустановки и кондиционирования;
7.Спецификация изделий и материалов. -
0Геологические изыскания (Геология)+ 800 BYN
Изучение природных условий и особенностей грунта на участке, где планируется строительство.
Это поможет избежать ошибок в проектировании дома и предотвратить такие проблемы, как трещины в фасаде или деформации строения. Геологические изыскания также позволяют определить тип грунта, что влияет на выбор фундамента и его стоимость. Без проведения геологических изысканий есть риск возникновения опасных ситуаций, таких как обрушение здания из-за оползней или возникновение плесневых грибков.
-
0Геодезические изыскания (Топосъёмка)+ 600 BYN
Это комплекс геодезических работ, направленных на детальное изучение территории (создание точного плана местности, отображающий рельеф, инфраструктуру, подземные коммуникации и иные элементы).
Этот процесс включает как полевые исследования, так и камеральную обработку данных, результатом которой становится инженерно-топографический план.
-
0Технический дизайн проект+ 5 000 BYN
Технический дизайн проект - это комплект чертежей, который решает задачи по оптимизации пространства, обеспечению комфорта и безопасности. Данный раздел включает в себя проектирование, расчёты и подбор материалов с учётом функциональности, эргономики и технических требований.
1.Схема расстановки мебели
2.Схема водоснабжения
3.Схема потолков
4.Схема освещения. Схема освещения в группах
5.Схема электрики
6.Схема расположения кондиционеров
7.Развёртки стен
8.Схемы монтажа. Деталировочные виды
0



