Баня 34 м²
Стоимость проекта:
от 700 BYN
Стоимость строительства:
Планировочные решения
Площадь дома
-
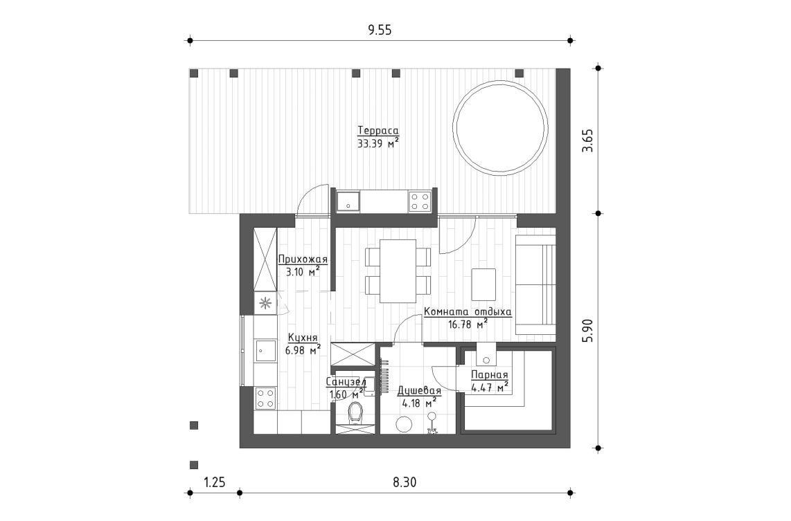
Общая площадь (с террасами и навесом)62,6
-
Площадь общаядо 80 м²
-
Площадь парной3,8
-
Площадь зоны отдыха13,6
-
Спальная комнатаНет
-
СанузелДа
-
Общая площадь (с террасами и навесом)62,6
-
Площадь общаядо 80 м²
-
Площадь парной3,8
-
Площадь зоны отдыха13,6
-
Спальная комнатаНет
-
СанузелДа
Стоимость проектирования
-
0Конструктивные решения+ 1 500 BYN
Конструктивные решения - раздел строительного проекта, содержащий детальную проработку несущих конструкций
с подсчётом спецификации.- Общие данные, технические указания и рекомендации по выполнению строительно-монтажных работ;
- Планы и сечения фундаментов, спецификации;
- Планы расположения элементов перекрытий. Спецификации;
- Планы расположения элементов крыши. План стропил. Спецификации;
- Схемы устройства конструктивных элементов, требующих детального изображения (монолитный пояс, монолитные участки);
- Чертежи узлов и деталей по всем конструктивным элементам;
- Спецификация и сечения перемычек;
- Схема утепления фасадов;
- 3Д Виды конструктива дома.
-
0Генеральный план+ 600 BYN
Генеральный план - раздел строительного проекта, содержащий план с точным расположения и привязкой к местности, дорогам, окружающим строениям, существующим коммуникациям, противопожарным разрывам.
- Разбивочный план. Ситуационная схема;
- Вертикальная планировка;
- Схема наружных инженерных сетей.
-
0Проект инженерных сетей+ 1 200 BYN
Инженерные сети - раздел технических решений по внутренней канализации, отоплению, водоснабжению и устройству котельной с подробной спецификацией.
- Пояснительная записка. Расчёты теплопотерь
- План и схема раскладки труб канализации;
- План и схемы системы водоснабжения;
- План и схемы системы отопления;
- Схемы устройства котельной;
- Спецификация изделий и материалов.
-
0Типовой дизайн+ 2 000 BYN
Типовой дизайн проект дома позволяет оптимизировать денежные средства, и предусмотреть заранее все функциональные и технические особенности планировки вашего строения.
-
0Индивидуальный дизайн+ 8 000 BYN
Концепция будущего интерьера с подробной технической информацией по его реализации, в соответствии с индивидуальными требованиями клиента.
0

Похожие проекты


